Skip to content
CUSTOMISE Your Tiny Home -
Call us now!
Menu
Homes
Bathrooms
Accessories
Solar Packages
Council Approvals
About Us
Blog
Finance
Enquire Now
Enquire Now
02 7232 0245
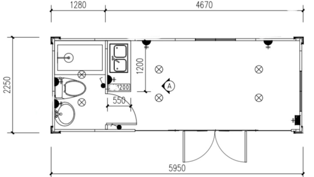
The Maxi Studio
- From $29,700 (inc GST)
Enquire Now
The Maxi Studio
About The Maxi Studio
The ‘Maxi Studio’ – The perfect studio solution for your backyard
Customisable doors and windows
$29700
$29700
$29700
Customisable options
Choice of floor colour
Interior and exterior cladding. (Exterior cladding is $1500)
Glass front option
All units are customisable in size – please chat with our friendly staff members to see how we can help you fill your space.
Kitchen
Stone bench tops
Stainless sink kitchenette
customisable styles.
Windows and Doors
Windows and doors are customisable to preference.
Double-glazed windows with Fly screens.
Glass entry doors and glass bathroom door.
Customised glass, windows and doors – please ask our friendly staff members to quote your custom style.
Cladding
Available with an external corrugated look or with cladding.
Please ask our staff about the exterior options available.
Roof
Centre section and walls: Top Galvanised and Painted protective steel cover sheet with Glass wool insulation. 75mm thick.
Power & Lighting: Up to Australian Standards
Power & Lighting: Up to Australian Standards
Light and power cable, switches and power points installed to Australian standard.
Wired to AS/NZS 3000
Aircon to be installed by local trades.
EDB (Electrical Distribution Board) installed and wired for AC.
Bathroom
Shower Hub with rainmaker shower head
Vanity with sink and flick mixer, overhead cupboard with mirror
Toilet with soft close lid
Exhaust fan.
The plumbing is complete inside the building and ready for connection outside.
Floor
Concrete composite magnese underfloor
L: 5850mm x W: 2250mm x H: 2450mm (external)
The flooring cover is a thick timber look SPC Hybrid flooring
All floors pre installed ready for delivery
Footing options
Concrete slab or pads.
Compacted ground.
Concrete or Steel stumps.
Trailer mount
Final Connections
The final connection of service to the building is by others please contact your local trades for installation.
TH4U - Maxi Studio 1
TH4U - Maxi studio kitchen 1
TH4U-Maxi-Studio-2
TH4U - Maxi Studio inside 1
Tiny Homes 4U - Maxi Inside 2
More Tiny Homes
The Granny Flat
The Granny Flat Panorama
The One Bedder
The Maxi Studio
The 30ft Expandable Unit
The 40ft Expandable Unit
The 40 footer Home
Site Offices
The Mod Pod
Shower Cube & Shower Block Rentals
The Shower Cube & Shower Blocks
The Steel Site Office
Disabled Toilet Block
Toilet Block Rental
The Toilet Block
Quick Enquiry