The 40ft Expandable Unit
2-4 Bedroom living options delivered in a 40ft package
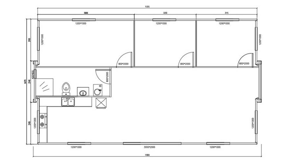
The 40ft Expandable Unit comes with either a 2-bed option or a 4-bed option, fully customisable inside and out to your liking
Ask about panoramic double glazed glass front for $4000
Ask about external cladding colours for $3600 per unit.
We can customise your floorplan to suit your needs, please enquiry with our team!















